• projekte
neon-bureau
  • projekte

Alters- und Pflegeheim Abegghuus, Rüschlikon

Wettbewerb  2013

View fullsize Aussen.jpg
View fullsize Innen.jpg
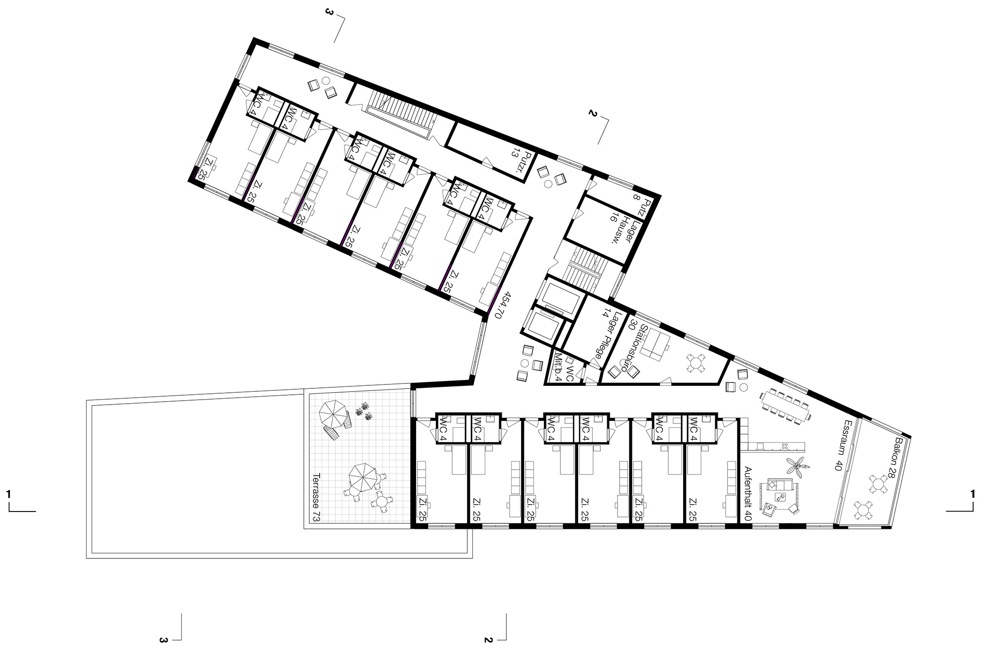
View fullsize EG.jpg
View fullsize 1.OG.jpg
View fullsize 2.OG.jpg
View fullsize 3.OG.jpg

Projektbeschrieb
Drei leicht trapezförmige Volumen staffeln sich in der Länge, Tiefe und den unterschiedlichen Niveaus des Grundstücks in Hanglage. So gelingt es, das im Quartier relativ grosse Volumen zu gliedern. Durch die Staffelung entstehen rund um das Gebäude Aussenräume, die das Abegghuus ins Quartier einbetten.

Team
ARGE neon | deiss
Landschaftsarchitektur: ASP Landschaftsarchitekten

Visualisierung: Rafael Schmid


neon bureau ag | dipl. architektinnen ETH BSA SIA | am wasser 55, 8049 zürich | +41 44 240 18 68 | welcome@neon-bureau.ch