• projekte
neon-bureau
  • projekte

Umbau und Aufstockung, Zürich

Planung und Ausführung 2010-2012

View fullsize Exterior.jpg
View fullsize _MG_7001.jpg
View fullsize _MG_6971.jpg
View fullsize _MG_7159.jpg
View fullsize _MG_7298.jpg
View fullsize _MG_7258b.jpg
View fullsize _MG_7253.jpg
View fullsize _MG_7085.jpg
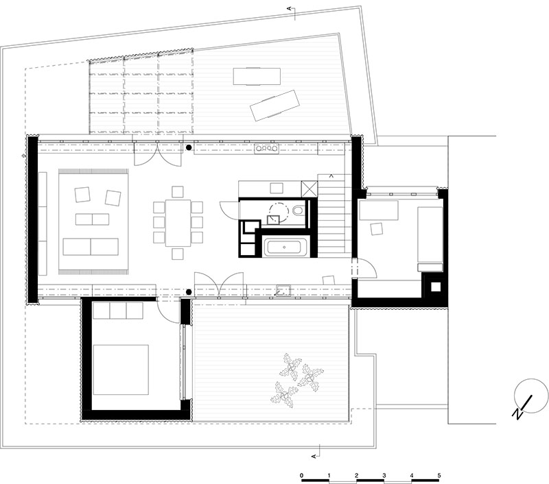
View fullsize 120916_Publikation_EG.jpg
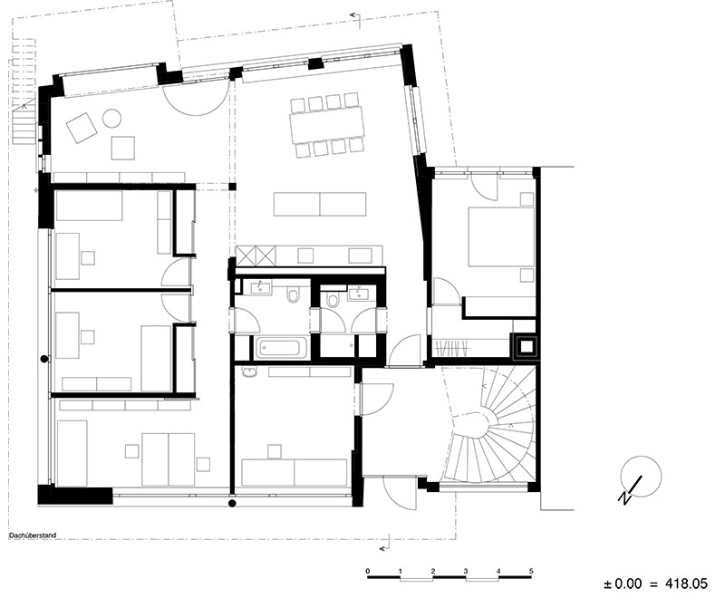
View fullsize 120916_Publikation_DG.jpg
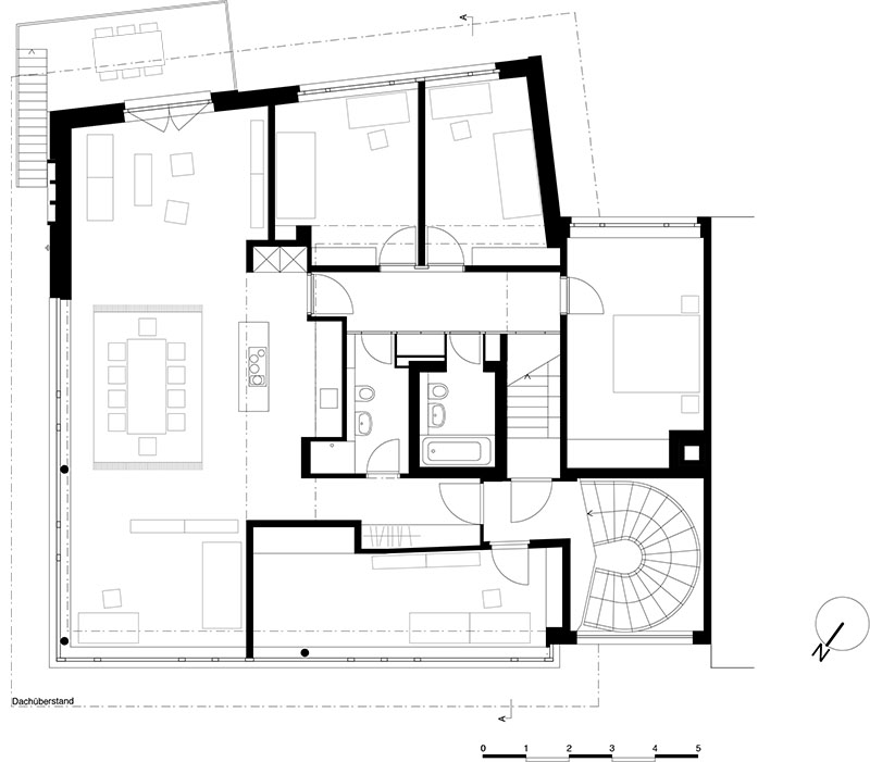
View fullsize 120916_Publikation_OG.jpg

Projektbeschrieb
Eine ehemaliges zweigeschossiges Restaurant (Baujahr 1957) wird zu einem Wohnhaus umgebaut. Es entstehen zwei grosse Geschosswohnungen, Einlegerbüros und durch eine Aufstockung ein Studio auf dem Dach. Während sich das Parterre zum Garten öffnet, wird im Obergeschoss der übereck belichtete, ehemalige Gastraum neu zum Wohnraum, das Dachgeschoss hingegen ist seitlich geschlossen und öffnet sich sowohl zur Strasse als auch zum Hof. Das flache Gebäude wird in seiner Eigenständigkeit sowohl in der Fassade als auch städtebaulich erhalten. Deshalb soll der Dachaufbau als autonome gestalterische Einheit erscheinen.

Team
Mit Matthias Stocker
Baumanagement: Thomas Melliger Bauplanung
Tragwerk: Büro Thomas Boyle
Bauphysik: BWS Bauphysik
Dachuntersicht: Franziska Born

Fotos: Roman Keller

Mitarbeit
Tom Fässler; Desirée Cuttat

Bauherrschaft
Privat


neon bureau ag | dipl. architektinnen ETH BSA SIA | am wasser 55, 8049 zürich | +41 44 240 18 68 | welcome@neon-bureau.ch