• projekte
neon-bureau
  • projekte

Innovationspark Biel

Wettbewerb 2016

View fullsize Aussenbild kleinSW.jpg
View fullsize INNEN Klein.jpg
View fullsize Innopark_OG_2.jpg
View fullsize Innopark_EG.jpg
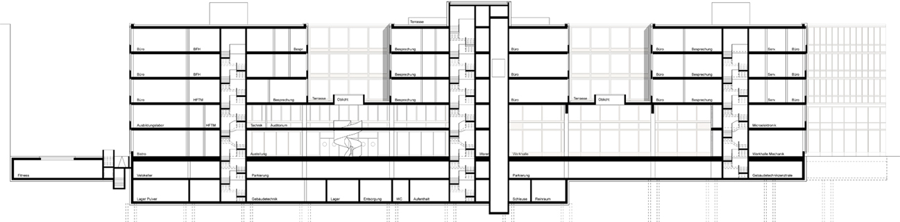
View fullsize 21.1 Längsschnitt.jpg
View fullsize Fassade NW.jpg

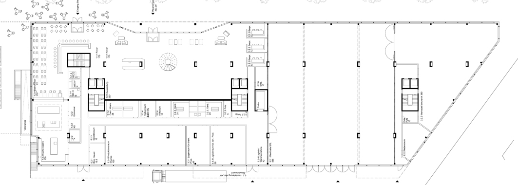
Projektbeschrieb
Ein komplexes Programm, das Büros, Labors, zwei Schulen, grosse Werkstätten, Gastronomie und Ausstellungsräume beinhaltet wirdvolumetrisch so gestaltet, dass die drei obersten Geschosse durch Einschnitte gut belichtet werden. Dadurch gelingt es, Büros und Labors an einem Korridor zu erschliessen.

Team
ARGE neon | deiss

Gebäudetechnik, Bauphysik: Durable GmbH + BS2
Statik: Ulaga Partner AG

Mitarbeit
Jonathan Brügger


neon bureau ag | dipl. architektinnen ETH BSA SIA | am wasser 55, 8049 zürich | +41 44 240 18 68 | welcome@neon-bureau.ch