• projekte
neon-bureau
  • projekte

Begleitetes Wohnen für Behinderte, Romanshorn

Wettbewerb  2011, 3. Rang

View fullsize Romanshorn.heller.jpg
View fullsize situation.jpg
View fullsize 3.5.EG200.jpg
View fullsize OG.jpg
View fullsize längsschnitt.jpg
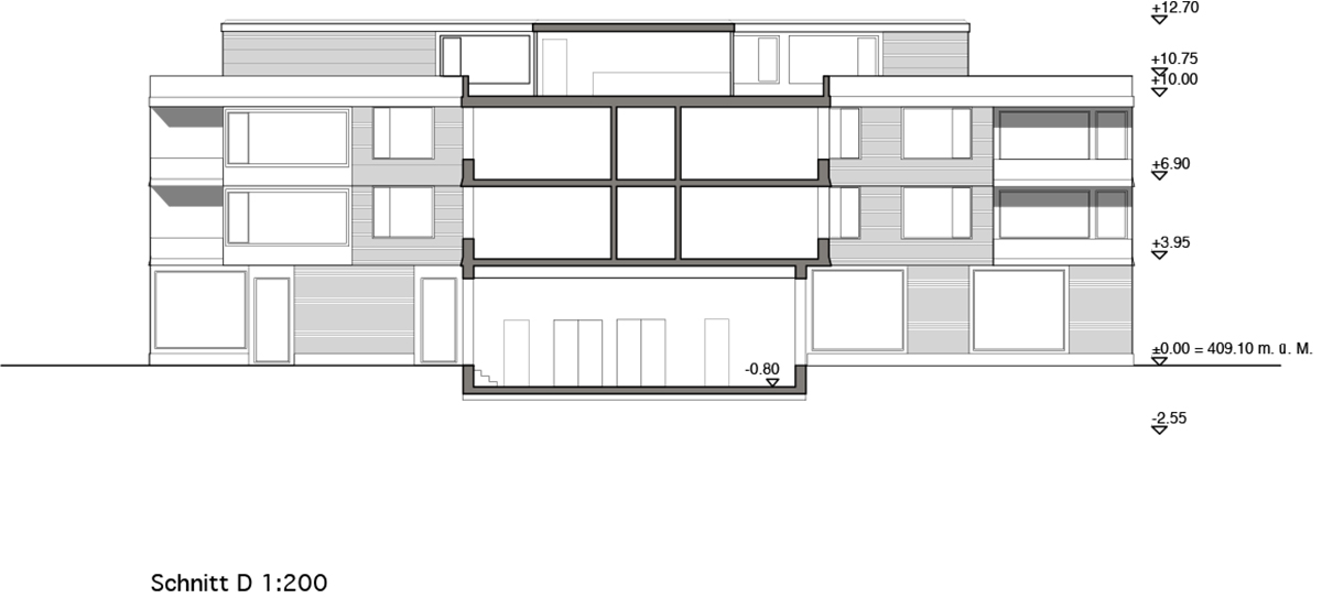
View fullsize Schnitt-Fass200_20.4_2_v12_v2008.jpg
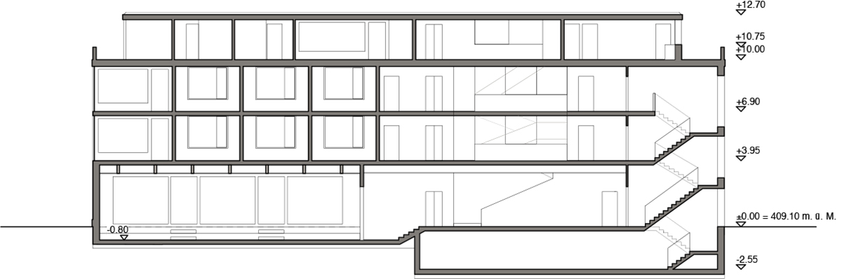
View fullsize schnitt hiinten.jpg
View fullsize schnitt saal.jpg

Projektbeschrieb
Die ländlich geprägte Umgebung in Romanshorn inspirierte zu einem Konzept, das durch die Setzung des Baukörpers unterschiedliche Orte als Felder ausscheidet und sich doch in die grosse Wiese einbettet. Um das relativ grosse Gebäude als einladendes Wohnhaus erscheinen zu lassen, wird der Baukörper gestaffelt und eine Fassade aus Eternitschindeln vorgeschlagen. Die Wohnungen sind alle mit einem geteilten Wohn- und Essbereich ausgestattet, die auch nach verschiedenen Himmerlsrichtungen orientiert sind.

Team
ARGE mit Sina Buxtorf
Landschaftsarchitektur: Hoffmann & Müller

Visualisierung: Mauro Caviezel


neon bureau ag | dipl. architektinnen ETH BSA SIA | am wasser 55, 8049 zürich | +41 44 240 18 68 | welcome@neon-bureau.ch