• projekte
neon-bureau
  • projekte

Erweiterung Altersheim Feldhof, Oberriet

Wettbewerb 2016

View fullsize Aussenskizze.5 ohne LOGO.jpg
View fullsize EG_Umgebung_200.jpg
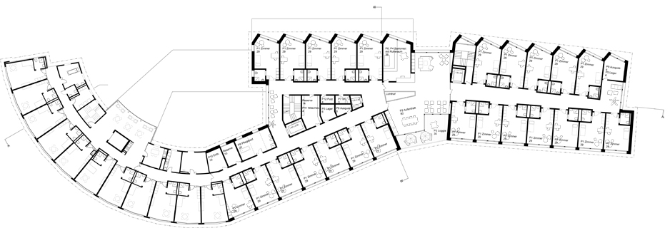
View fullsize GR_OG1.jpg
View fullsize SN_längs.jpg

Projektbeschrieb
Ein bestehendes Altersheim wird vergrössert, wobei der viertelkreisförmigle Zimmertrakt aus den 1990-er Jahren erhalten werden muss. Um den schönen Garten möglichst gross zu erhalten wird das Volumen schmal und lang.

Mitarbeit
Melina Cerfeda; Melanie Durot; Michel Gränicher


neon bureau ag | dipl. architektinnen ETH BSA SIA | am wasser 55, 8049 zürich | +41 44 240 18 68 | welcome@neon-bureau.ch