• projekte
neon-bureau
  • projekte

Schulanlage Feldmeilen

Wettbewerb 2012, 1.Rang
Planung und Ausführung: 2013-2019

View fullsize feld_Hof_Roland_Bernath_web.jpg
View fullsize neon_schule_feld_16615_web.jpg
View fullsize neon_schule_feld_16653_web.jpg
View fullsize neon_schule_feld_16791.bw_web.jpg
View fullsize neon_schule_feld_16606_web.jpg
View fullsize neon_schule_feld_16763_web.jpg
View fullsize neon_schule_feld_16570_web.jpg
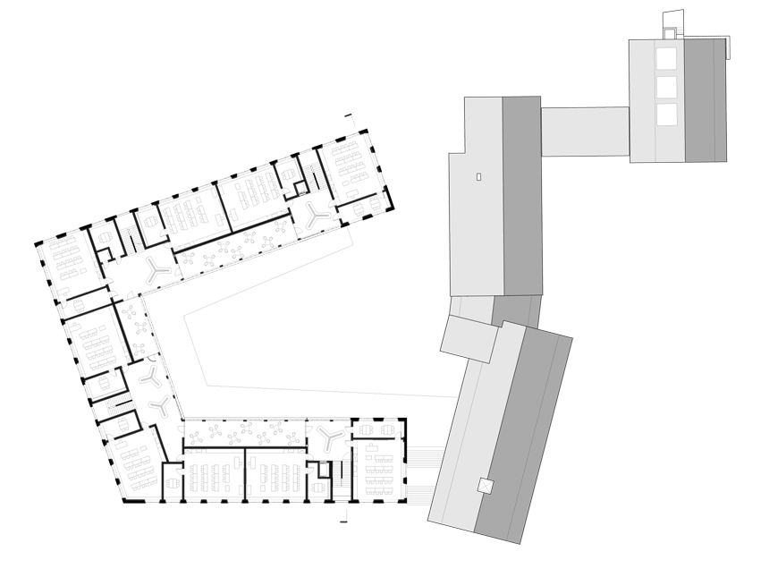
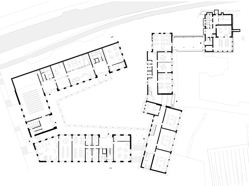
View fullsize NOF Situation.jpg
View fullsize NOF EG.jpg
View fullsize NOF 1OG.jpg
View fullsize NOF SN.jpg
View fullsize NOF FSW.jpg
View fullsize NOF FNW.jpg
View fullsize NOF Modellfoto.jpg

Projektbeschrieb
Ein C-fömiges neues Gebäude bildet mit dem bestehenden Schluhaus aus den 40er Jahren einen neuen Schulhof. Der Umgang um den Innenhof bildet die informelle „Wandelhalle“ der Schule, die einem Kreuzgang ähnlich der Konzentration aber auch dem Austausch gewidmet ist und Übersicht über die Zugänge zu den verschiedenen Flügeln bietet. Alle Nutzungen, die die ganze Schulanlage betreffen wie Aula, Lernzentrum oder Lehrererbereiche befinden sich im Hofgeschoss. Das bestehende Schulhaus ist selbstverständlich mit einem neuen Zugang von Westen an den Umgang angeschlossen.

Team
Generalplanerteam in ARGE neon | deiss
und GMS Partner Baumanagement

Landschaftsarchitektur: Hoffmann & Müller
HLS-Planung: HPS Engineering
Tragwerk: : Schnetzer Puskas Ingenieure AG
Holzbauingenieur: Timbatec
Bauphysik: BWS Bauphysik
Elektro-Lichtplanung: Mettler+Partner Lichtgestaltung

Visualisierung: Mauro Caviezel

Mitarbeit
Lorenz Müller (Projektleitung); Raphaela Hurschler; Sandra Labe; Jonathan Brügger;
Michèle Morf; Michel Gränicher; Jasminca Dürr
Praktikanten: Alice Clarke, Kilian Möllmann, Flavio Nef, Samar Said, Anna Droste

Bauherrschaft
Gemeinde Meilen


neon bureau ag | dipl. architektinnen ETH BSA SIA | am wasser 55, 8049 zürich | +41 44 240 18 68 | welcome@neon-bureau.ch