• projekte
neon-bureau
  • projekte

Schulanlage Freilager Zürich

Wettbewerb 2016

View fullsize HP_Perspektive01.jpg
View fullsize HP_Perspektive02.jpg
View fullsize HP_Schwarzplan_4000.jpg
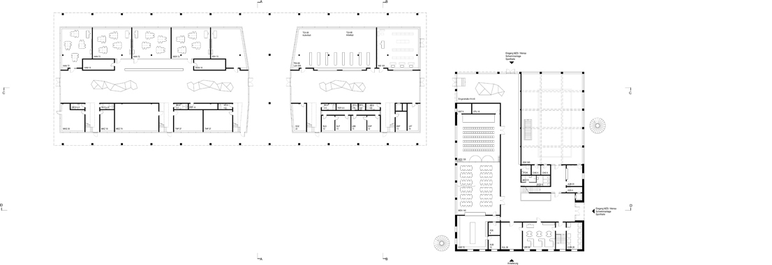
View fullsize HP_1 EG_Umbebung_200.jpg
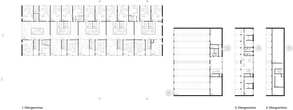
View fullsize HP_1 EG.jpg
View fullsize HP_2 OG.jpg
View fullsize HP_3 Dach.jpg
View fullsize HP_Freil FNW.jpg
View fullsize HP_Freil SN quer.jpg
View fullsize HP_Freil SN längs.jpg
View fullsize HP_Freil FSW.jpg
View fullsize HP_Freil FNO.jpg
View fullsize HP_Freil FSO.jpg
View fullsize HP_BauProv.jpg

Projektbeschrieb
Die wichtigsten Elemente in der Situation sind der öffentliche Park, die neue Schule und der Schulhof. Die Promenade ist dabei ein zentrales Element: sie ist die neue Adresse und vermittelt zwischen dem Park und der Schulwelt. Das Ensemble des Sporthallenbaus und des flachen Schulhauses bilden eine städtebauliche Überleitung zwischen dichtem Wohnquartier und offenem Grünzug um den Albisrieder Dorfbach und dem Gemeinschaftszentrum Bachwiesen.

Team
Landschaftsarchitektur: égü

Mitarbeit 
Samar Said; Melanie Durot


neon bureau ag | dipl. architektinnen ETH BSA SIA | am wasser 55, 8049 zürich | +41 44 240 18 68 | welcome@neon-bureau.ch