• projekte
neon-bureau
  • projekte

Bezirksgericht Meilen

Wettbewerb 2015

View fullsize Schnittperspektive.jpg
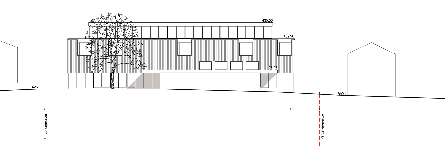
View fullsize 151113_01_Aussen ohne logo.jpg
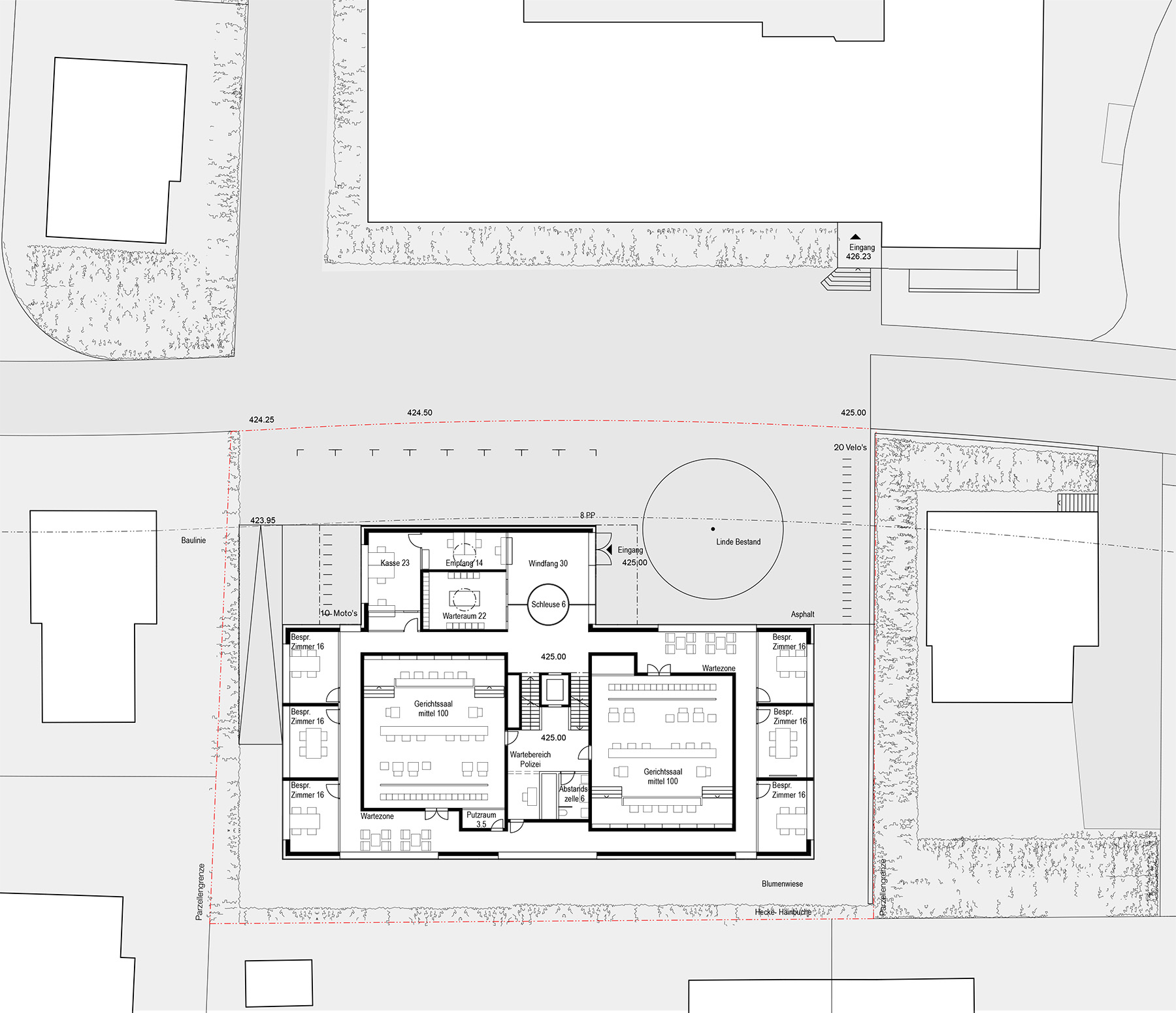
View fullsize 151111_Situation.jpg
View fullsize GR EG.jpg
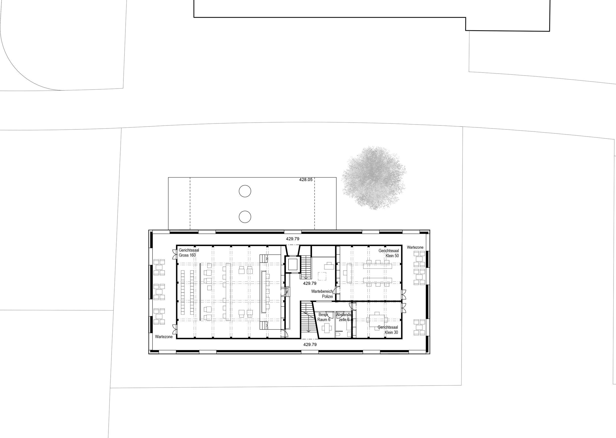
View fullsize GR OG.jpg
View fullsize Fass Nord.jpg
View fullsize Fass West.jpg
View fullsize Längsschnitt.jpg
View fullsize QS A-A.jpg
View fullsize QS B-B.jpg
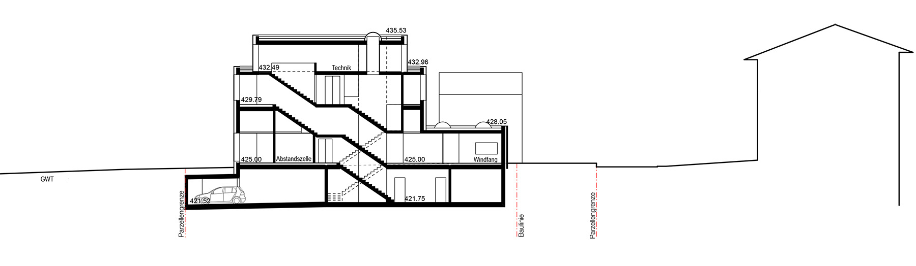
View fullsize Schnitt20.jpg

Projektbeschrieb
Die Ausweitung des Strassenraums betont die Öffentlichkeit und Wichtigkeit des Ortes, der sich etwas abseits des Dorfzentrums von Meilen oberhalb der Bahnlinie befindet. Die spezifischen Anforderungen an die Gerichtssäle sowie die Notwendigkeit zweier Wegsysteme bestimmen die Organisation des Neubaus. Die Säle bilden sowohl räumlich, organisatorisch als auch von ihrer Bedeutung her das Zentrum des Gebäudes und werden von oben seitlich belichtet.

Team
ARGE neon | deiss

Mitarbeit
Samar Said-El-Kerwash; Anna Droste

Visualisierung
Rafael Schmid


neon bureau ag | dipl. architektinnen ETH BSA SIA | am wasser 55, 8049 zürich | +41 44 240 18 68 | welcome@neon-bureau.ch