• projekte
neon-bureau
  • projekte

Hort und Jugendtreff Glaubten, Zürich

Planung und Ausführung, 2008

View fullsize Garderobe Hort ohne logo.jpg
View fullsize Jugendtreff.jpg
View fullsize Aussen.jpg
View fullsize Obergeschoss.jpg
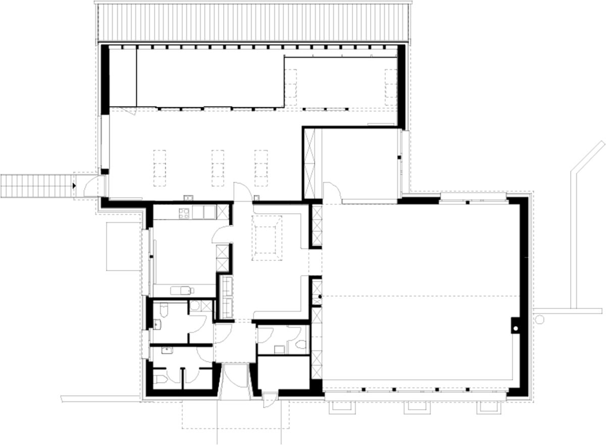
View fullsize Erdgeschoss.jpg
View fullsize Schnitt.jpg

Projektbeschrieb
Im Gebäude aus den 60er Jahren wurde der bestehende Hort erweitert und das ehemalige Ladenlokal zu einem Jugendtreff der OJA umgenutzt. Die Ladenfront musste erneuert werden, was es erlaubte, mit dem gewählten Fuchsiarot ein Zeichen zu setzten und die altrosa Fassade des Bestandes aufzufrischen. Im Obergeschoss wurden die Nebenräume so umorganisiert, dass die Garderobe als Empfangsraum das Herz des Horts bildet. Das neue Oblicht sticht durch das Dachgeschoss und bringt eine Überhöhe in den Raum. Die gemalte Tapete verweist auf die Sonderfunktion des Raumes. Im Jugendtreff (EG) wurde eine Kassettendecke in Sichtbeton freigelegt, die mit dem bestehenden Plättliboden einen kraftvollen Raum schafft.

Team
Baumanagement: Büro 3, Carlo Hafen
Bauphysik: BWS Bauphysik
Statik: Büro Thomas Boyle

Fotos: Peter Tillessen

Bauherrschaft
Stadt Zürich


neon bureau ag | dipl. architektinnen ETH BSA SIA | am wasser 55, 8049 zürich | +41 44 240 18 68 | welcome@neon-bureau.ch