• projekte
neon-bureau
  • projekte

Kreisbüro 11, Zürich

Planung und Ausführung 2009

View fullsize KB11_007.jpg
View fullsize KB11_008.jpg
View fullsize KB11_003.jpg
View fullsize KB11_005.jpg
View fullsize KB11_004.jpg
View fullsize KB11_001.jpg
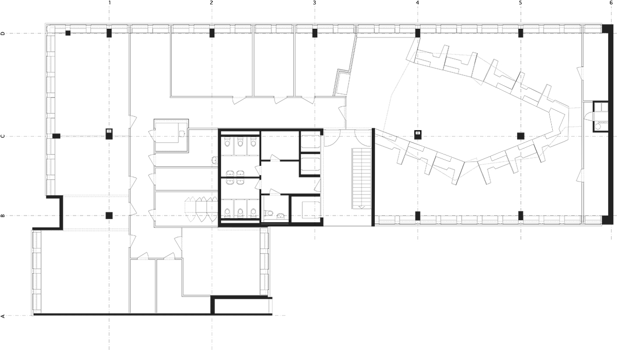
View fullsize Publikationsplan.jpg

Projektbeschrieb
Für das Bevölkerungsamt der Stadt Zürich wurden am Bahnhof Örlikon eine Schalterhalle sowie die zugehörige Infrastruktur in ein bestehendes Bürohaus eingebaut. Das Herzstück der Anlage, die Schalterhalle, ist so gelegt, dass der Kundenbereich Fassadenanstoss hat und die Wartenden das rege Treiben am Bahnhof Oerlikon beobachten können. Die elf Schalter sind im strengen Geschossgrundriss als amorphe Raumkonfiguration aufgespannt. Durch die gespiegelten Arbeitsplätze, deren Trennwände einseitig leuchtend bemalt sind, verändert sich im Durchschreiten die Perspektive ständig. Die Atmosphäre wird vom hellen Holz, den satten Farben und der Beleuchtung unkompliziert und freundlich gestaltet.

Team
Baumanagement: Büro 3, Carlo Hafen
HLS-Planung: Getec AG
Lichtplanung: Neue Werkstatt
Signaletik: Bodara GmbH

Fotos: Peter Tillessen

Bauherrschaft
Stadt Zürich


neon bureau ag | dipl. architektinnen ETH BSA SIA | am wasser 55, 8049 zürich | +41 44 240 18 68 | welcome@neon-bureau.ch