• projekte
neon-bureau
  • projekte

Gemeinde und Kulturzentrum Mels

Wettbewerb 2013, Ankauf

View fullsize PlatzVisu3.2 LR.jpg
View fullsize StrassenVisu3.2.jpg
View fullsize Situation.jpg
View fullsize MEL SN 1.jpg
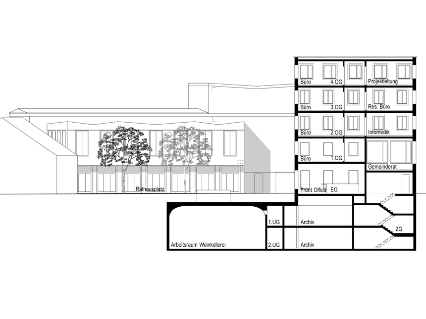
View fullsize MEL SN .jpg
View fullsize MEL SN 2.jpg

Projektbeschrieb
Als Ergänzung zum bestehenden Dorfplatz ist der Rathausplatz als baumbestandener Kiesplatz ein offener Raum, dessen informeller Charakter zu jenem des Dorfplatzes einen Kontrast bildet. Die zwei Neubauten am Platz – der Rathausanbau sowie der Gemeindesaal – bilden mit dem Alten Rathaus die öffentlichen Orte. Das Foyer des Saals ist so ausgerichtet, dass es über den Rathausplatz zum Dorfplatz hin frontal steht, um auch auf Distanz eine Präsenz zu entfalten. Der Rathausanbau schiebt sich in den Rathausplatz hinein, denn die prominente Nordecke vereint wichtige öffentliche Funktionen: Durch die Bögen erreicht man den neuen Haupteingang, die Weinkellerei und den Durchgang zur Wangserstrasse.

Team
ARGE neon | deiss
Landschaftsarchitektur: Hoffmann & Müller

Visualisierung: neon / RDA

Mitarbeit
Kevin Rubin


neon bureau ag | dipl. architektinnen ETH BSA SIA | am wasser 55, 8049 zürich | +41 44 240 18 68 | welcome@neon-bureau.ch