• projekte
neon-bureau
  • projekte

Umbau Arztpraxis, Zürich

Planung und Ausführung: 2015-2016

View fullsize WIT4.jpg
View fullsize WIT3.jpg
View fullsize WIT1.jpg
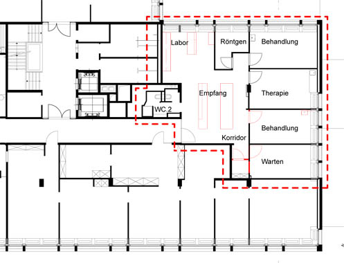
View fullsize WIT Plan.jpg

Projektbeschrieb
Eine bestehende Arztpraxis wurde mit einfachen Mitteln den Bedürfnissen der zwei Inhaberinnen angepasst sowie an den heutigen Stand der Technik angepasst. Der neu gestaltete, offene Eingangsbereich vereint Empfang und Administration sowie Labor- und Aufenthaltsbereichbereich.

Team
Baumanagement: Martin Puppel

Mitarbeit
Michèle Morf (Projektleitung); Anna Droste

Bauherrschaft
Gemeinschaftspraxis Klusplatz


neon bureau ag | dipl. architektinnen ETH BSA SIA | am wasser 55, 8049 zürich | +41 44 240 18 68 | welcome@neon-bureau.ch