• projekte
neon-bureau
  • projekte

Schulanlage Räfis, Buchs SG

Wettbewerb 2014, 5. Rang

View fullsize Blick in Turnhalle.jpg
View fullsize Modellfoto_500.jpg
View fullsize Kindergarten.jpg
View fullsize REF Situation.jpg
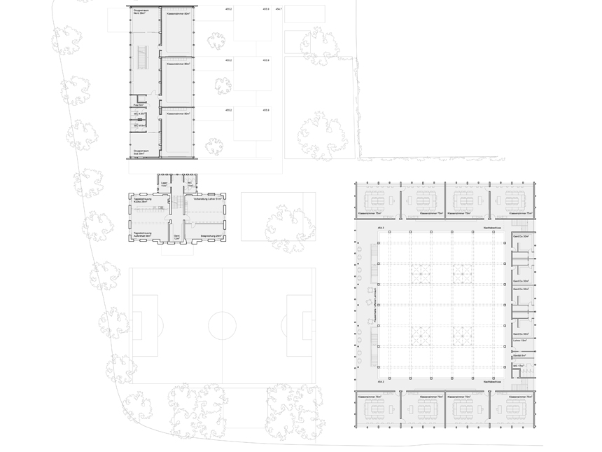
View fullsize REF OG.jpg
View fullsize REF ANS 1.jpg
View fullsize REF ANS 2.jpg
View fullsize REF SN 1.jpg
View fullsize REF SN 2.jpg

Projektbeschrieb
Ein hybrider Schulhaus-Turnhallenbau erweitert das bestehende Ensemble um einen Baukörper, der mit seinen zwei Geschossen bewusst unter der Höhe der beiden bestehenden Schulhäuser bleibt. In der neuen Situation bildet das alte, denkmalgeschützte Schulhaus wieder den offiziellen Auftakt, während der Neubau das starke Rückgrad bildet. Das Schulhaus aus den 1970er-Jahren wird im Erdgeschoss angebaut und zu drei Kindergärten erweitert. Die pavillonartigen Ergänzungsbauten bilden geschützte Höfe, die je einem Kindergarten zugeordnet sind.

Team
ARGE neon | deiss
Landschaftsarchitektur: Hoffmann & Müller
Haustechnik: hps energieconsulting ag
Tragwerk: Schnetzer Puskas Ingenieure AG

Modellbilder: ARGE neon | deiss

Mitarbeit
Lorenz Müller (Projektleitung); Jonathan Brügger


neon bureau ag | dipl. architektinnen ETH BSA SIA | am wasser 55, 8049 zürich | +41 44 240 18 68 | welcome@neon-bureau.ch