• projekte
neon-bureau
  • projekte

Primarschulhaus Riethüsli St. Gallen 

Wettbewerb 2012

View fullsize Aussenraum LR.jpg
View fullsize Innenraum.jpg
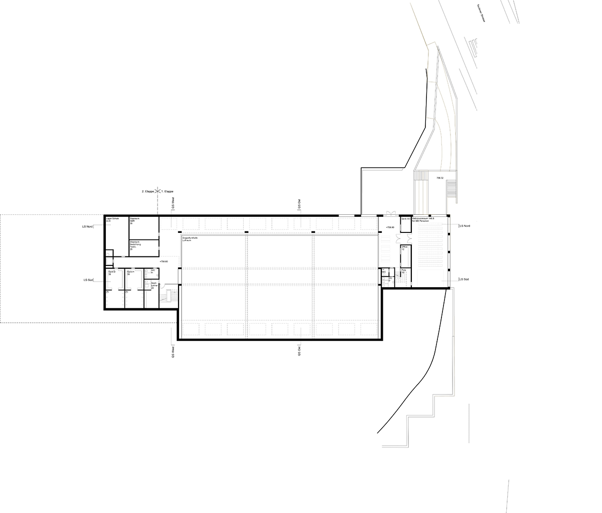
View fullsize Erdgeschoss.jpg
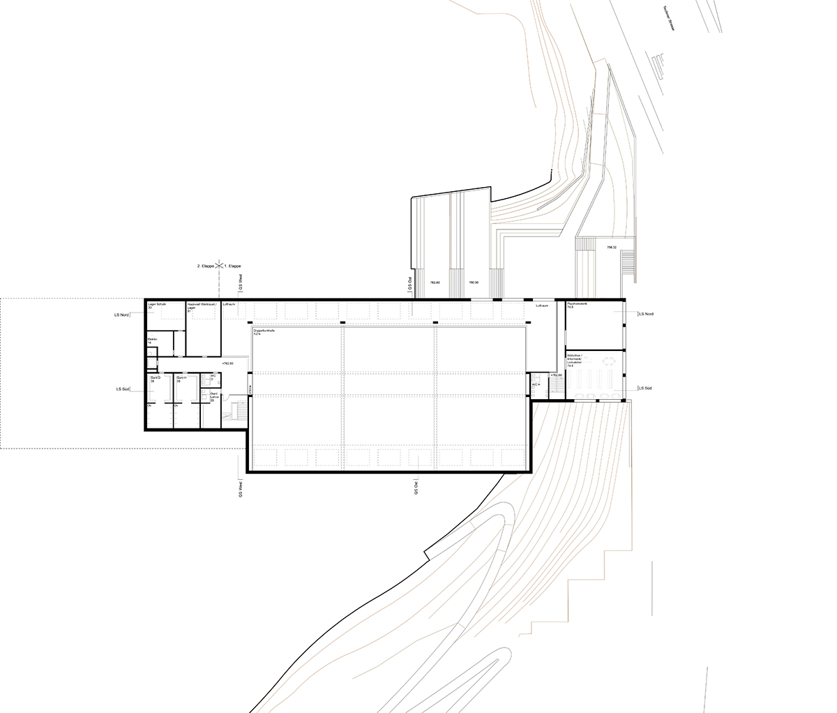
View fullsize Obergeschoss.jpg
View fullsize Level 3.jpg
View fullsize Level 4.jpg
View fullsize Fass Nord.jpg
View fullsize Fass Ost.jpg
View fullsize Laengsschnitt.jpg
View fullsize LS Nord.jpg
View fullsize QS_Turnhalle_Halle.jpg

Projektbeschrieb
Der Ersatzneubau für die Primarschule Riethüsli, verbindet neu die auf verschiedenen Niveaus liegenden Stadtteile. Über dem Sockel zur Strasse mit dem Strassenwärterstützpunkt liegt der stark befensterte Mehrzwecksaal, der zur Stadt hin eine starke Präsenz hat. Das zurückversetzte Volumen des Klassentraktes vermittelt zum Einfamilienhausquartier. Das Sheddach verleiht der Gebäudelänge eine lesbare Massstäblichkeit und rhytmisiert die Fassaden.

Team
ARGE mit Stephania Zgraggen
Landschaftsarchitektur: Katja Albiez
Tragkonstruktion: Projekta AG

Visualisierung: Mauro Caviezel


neon bureau ag | dipl. architektinnen ETH BSA SIA | am wasser 55, 8049 zürich | +41 44 240 18 68 | welcome@neon-bureau.ch