• projekte
neon-bureau
  • projekte

Primarschule Schoren Basel

mit städtebaulichem Ideenteil
Wettbewerb 2013, 4.Rang, 3.Preis

View fullsize SCH Bild.jpg
View fullsize SCH Situation.jpg
View fullsize SCH EG.jpg
View fullsize SCH OG.jpg
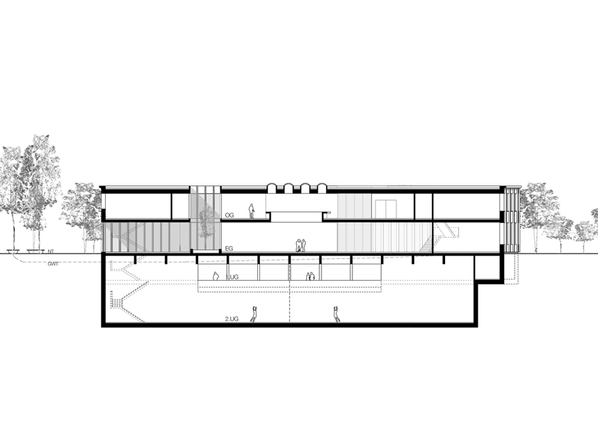
View fullsize SCH SN1.jpg
View fullsize SCH SN2.jpg
View fullsize SCH Fassade 1.jpg
View fullsize SCH Fassade 2.jpg
View fullsize SCH Fassade 3.jpg
View fullsize SCH Fassade 4.jpg

Projektbeschrieb
Während sich das südliche Areal mit der Schule dadurch auszeichnet, dass der sperrige Baukörper Räume ausscheidet und bestimmt, bilden die beiden Wohnungsbaukörper einen Raum in ihrem Innern, der primär den Bewohnern vorbehalten ist. Der markante Baumbestand ist ein wichtiger Parameter, auf den die vorgeschlagenen Baukörper entlang der Strasse mit einer freien Linie reagieren. Die Schule ist durch die zentrale, zweigeschossige Halle gegliedert; im Erdgeschoss scheidet sie drei Blöcke aus mit Aula, Kindergarten und Lehrerbereich, im Obergeschoss sind darum herum die Schulzimmer organisiert.

Team
ARGE neon | deiss
Landschaftsarchitektur: Hoffmann & Müller

Visualisierung: Radek Brunecky

Mitarbeit
Severin Neukom


neon bureau ag | dipl. architektinnen ETH BSA SIA | am wasser 55, 8049 zürich | +41 44 240 18 68 | welcome@neon-bureau.ch