• projekte
neon-bureau
  • projekte

Umbau eines denkmalgeschützten Ensembles, Horgen

Planung 2014-2016

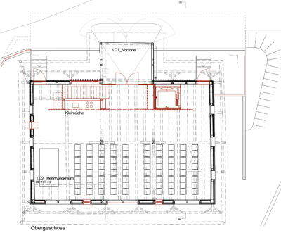
View fullsize Bild OG.jpg
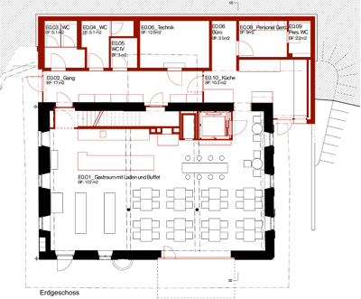
View fullsize Bild EG.jpg
View fullsize Situation.jpg
View fullsize Sch EG.jpg
View fullsize Sch OG.jpg
View fullsize Sch SN.jpg
View fullsize Sch ANS.jpg

Projektbeschrieb
Auf einem etwa 40000 Quadratmeter grossen Gelände in Horgen wird ein nachhaltiges Quartier mit Wohnungen, Gewerbe und gemeinschaftlichen Anlagen geplant. Es ist in vier Teilgebiete unterteilt, die je von einem Architekturbüro bearbeitet werden. Im Teilgebiet Mitte plant neon die gemeinschaftlichen Einrichtungen wie Beiz, Saal, Kinderkrippe, offene Werkstatt etc. des Areals in einem denkmalgeschützten Ensemble.

Team
Generalplaner mit Raphael Gretener, Baumanagement
Tragwerk: Büro Thomas Boyle
HLS: BSP Energie GmbH
Elektroingenieur: Mettler+Partner Lichtgestaltung
Bauphysik: BWS Bauphysik
Landschaftsarchitektur: manoa landschaftsarchitekten gmbh

Mitarbeit
Michel Gränicher; Christa Kanalz

Bauherrschaft
Trift AG


neon bureau ag | dipl. architektinnen ETH BSA SIA | am wasser 55, 8049 zürich | +41 44 240 18 68 | welcome@neon-bureau.ch