• projekte
neon-bureau
  • projekte

Kantonsschule Limmattal

Wettbewerb 2017

View fullsize 21_Innenbild_Aula.jpg
View fullsize 20_Innenbild_Halle.jpg
View fullsize 22_Aussenbild_alles.jpg
View fullsize 23_Aussenbild_Balkon.jpg
View fullsize 16-KL_GR_Sit_500.jpg
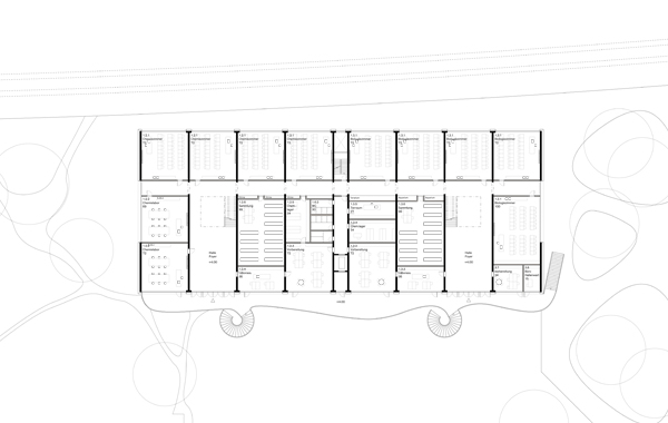
View fullsize 4-KL_GR_OG1.jpg
View fullsize 7-KL_SN_lang_hell.jpg

Projektbeschrieb
Die Stapelung der Schulnutzung auf den Doppelturnhallen hat eine symmetrische Anlage zur Folge, deren Mitte in Querrichtung durch eine schmale Schicht mit Fluchttreppe und Lift betont wird. Die beiden Hauptgeschosse, welche den vier Fachbereichen zugeordnet sind, gruppieren sich jeweils um zwei zentrale Hallen. Das prägende strukturelle Element der Obergeschosse sind die Schotten in Querrichtung, die eine unterzugsfreie Überspannung der Turnhallen gewährleisten. Dieses Prinzip verursacht auch die Versetzung der Hallen und Korridore in beiden Geschossen, um die Schotten nicht zu stark zu schwächen. Die entlang der Schotten verlaufenden Hallen werden in der Mitte des Gebäudetiefe durch Lichthöfe verbunden.

Team
ARGE neon | deiss

Baumanagement: GMS Partner AG
Statik: Ulaga Partner AG
Landschaftsarchitektur: Hoffmann & Müller GmbH
Elektroplanung: Gruner Kiwi AG
HLK: hps energieconsulting ag
Sanitärplanung: Gerber + Plüss Haustechnik
Brandschutzplanung: Gartenmann Engineering AG
Bauphysik: Durable GmbH

Mitarbeit
Melina Cerfeda; Markus Bosshard; Michel Gränicher


neon bureau ag | dipl. architektinnen ETH BSA SIA | am wasser 55, 8049 zürich | +41 44 240 18 68 | welcome@neon-bureau.ch