• projekte
neon-bureau
  • projekte

Schulhaus Martin Haffter

Wettbewerb 2017

View fullsize Schlussbericht_Martin Haffter_170322.jpg
View fullsize W75_Aussen-Abend.jpeg
View fullsize W75_Innen.jpeg
View fullsize Weinfelden_GR_UG1.jpg
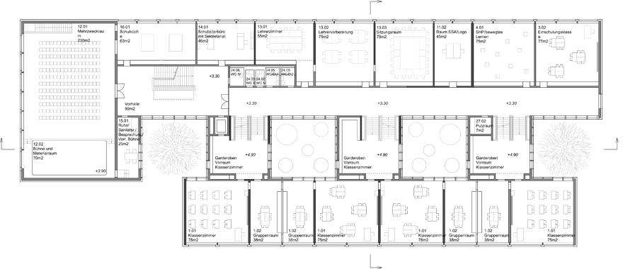
View fullsize Weinfelden_GR_EG.jpg
View fullsize Weinfelden_SN_längs.jpg

Projektbeschrieb
Auf dem Grundstück bleibt der grosszügige Aussenraum im Westen der Anlage vollkommen frei von Bebauung, zudem kann ein Grossteil der bestehenden, schönen Aussenanlagen belassen werden. Durch die Lage im Scharnier zwischen Wohn- und Industriegebiet passt sich das verlängerte Schulhaus gut in die Bebauungsstruktur ein. Der Ersatzbau mit dem vergrösserten Mehrzwecksaal klärt die Eingangssituation. Entscheidend bei der Neuinterpretation des Gebäudes ist die Aktivierung des bisherigen Untergeschosses, das zum Erdgeschossniveau mit grosszügiger Halle wird. Durch den Rückbau des Flachdachs werden die einzelnen Volumen besser lesbar.

Team
ARGE mit Architekturbüro Blatter + Müller

Bauingenieur: Büro Thomas Boyle + Partner AG
Haustechnik: Durable GmbH


neon bureau ag | dipl. architektinnen ETH BSA SIA | am wasser 55, 8049 zürich | +41 44 240 18 68 | welcome@neon-bureau.ch